This product was 3D printed using Prusa i3 MK3S+ FFF technology, from PLA filament
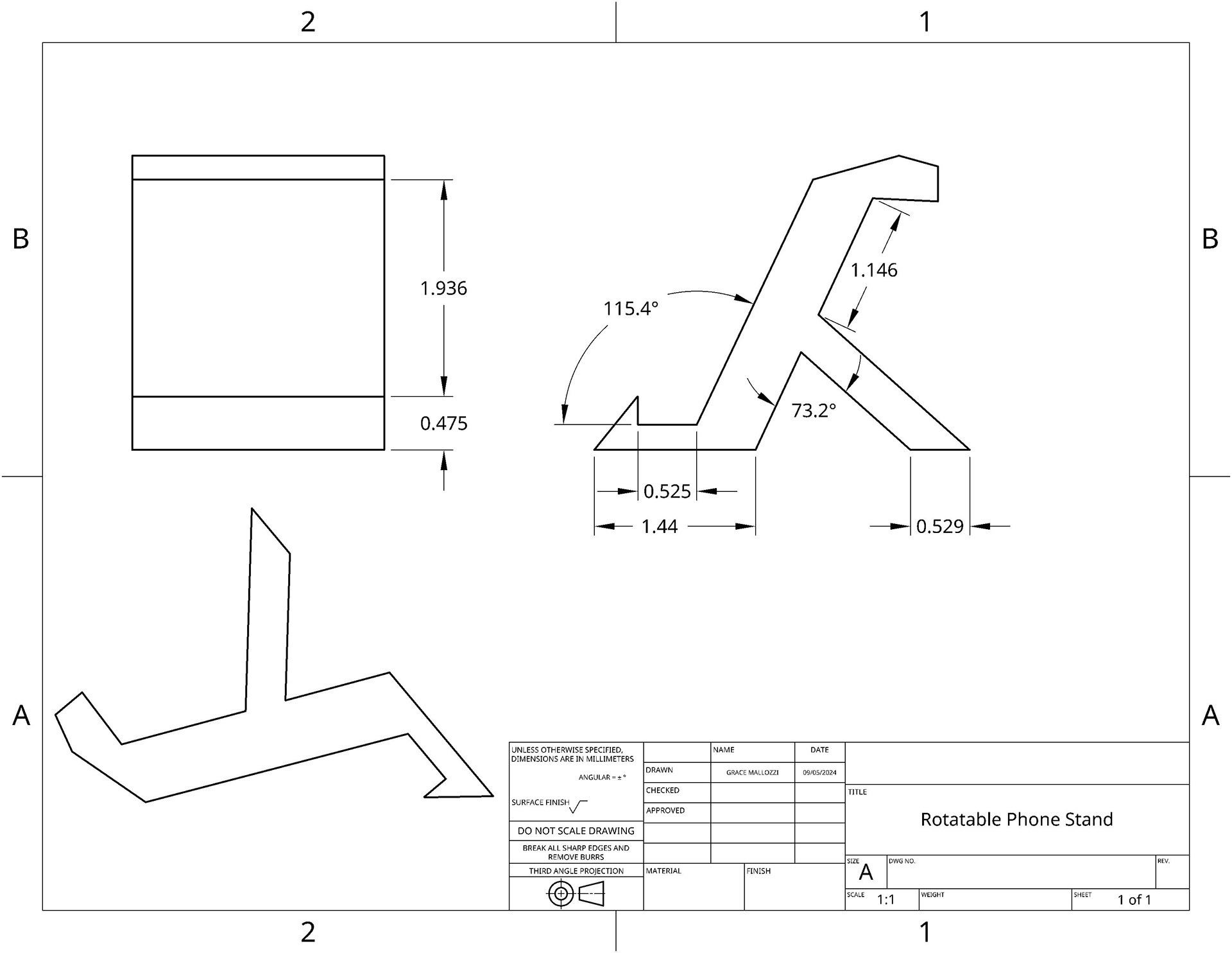
Here are the sketches, technical drawings and CAD modeled phone stand, designed for 3-D printing. This design allows the user to complete activities while watching videos on their phone- hands free! By rotating the stand the user can achieve a new angle for video watching. This minimalist design can be printed using a 3-D printer in no time at all, with no supports needed! The link to the CAD model created on Onshape can be found below. Click the button below to access CAD model, and scroll down to see the final product!